Противоток встраиваемый Badu Jet Primavera Deluxe 75м3/ч, 3,9кВт, 220В, LED RGB
Общие характеристики
Модель Badu Jet Primavera является последователем популярной спортивной модели Badu Jet Super-sport. Этот встраиваемый противоток станет настоящим испытанием даже для опытных спортсменов. Он имеет 2 форсунки, создающие мощный поток воды, которые может регулироваться, чтобы удовлетворять именно вашим нуждам. В противоток встроено LED освещение для создания замечательной водной картинки, радующей взгляд. Можно дополнительно приобрести необходимое оборудование в качестве опции.
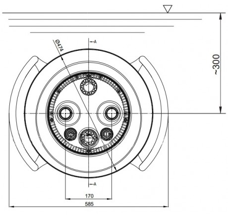
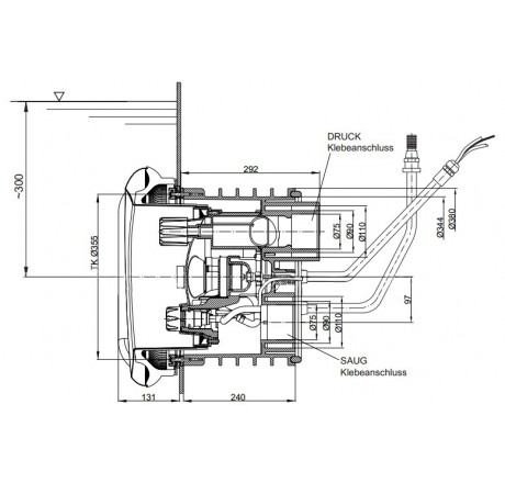
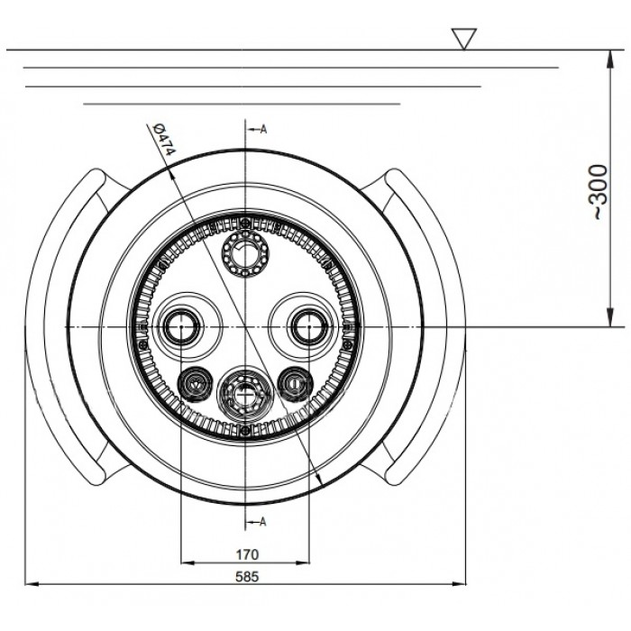
Комплектация: противоток, поручни из нержавеющей стали, LED освещение. Закладные детали в комплект не входят.
Комплект противотока:
› 2 корпуса форсунок с соединительными элементами
› Передняя панель
› Всасывающий и напорный патрубки
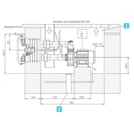
› Переключающее устройство
› Насос
Особенности:
• Замечательный внешний вид и эффективная эргономика
• Возможность встаивания практически в любой бассейн
• Высококачественные материалы
• Встроенная фоновая подсветка LED белого цвета или RGB
• Максимальная безопасность
• Простой монтаж













