Водопад Стеновой 1000 AISI 316
Общие характеристики
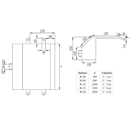
В отличие от моделей, которые монтируются непосредственно в борт плавательного бассейна, стеновой водопад с шириной излива 1000 мм предназначен для установки на вертикальные поверхности – в стену или выделенную нишу. Эти декоративные элементы оформления бассейнов и открытых ландшафтных зон можно устанавливать одиночно или линейными группами по 2-5 единиц, располагая их на некотором расстоянии друг от друга.
Характеристики:
- Производительность: 70 м3/час;
- Эффективная ширина излива: 1000 мм;
- Подсоединение: 2’’х 2 ВР;
- Материал: листовая нержавейка марки AISI 316;
- Зеркальная полировка оконечной (видимой) части излива – около 7-8 см.
Комплектация:
Учитывая особенности монтажа в стену, водопады данной модели не имеют отдельной закладной части, к которой обычно привинчивается корпус. В данном случае закладной конструкцией является сам корпус стенового водопада Ксенозон, так как он встраивается в бетонную стену практически полностью.







